Servizio Clienti: 3454618833
Dal Lunedi al Sabato dalle 9:00 alle 13:00 - dalle 16:00 alle 20:00
Samuel immobiliare di Roberto Castorina - Agenzia Immobiliare Sicilia - Catania - Giarre - Riposto - Acireale - Taormina - Giardini Naxos
Vendita
Locazioni
Richieste
Contratto
Chi Siamo
Dove Siamo
Contattaci
Lavora con noi
COMPRAVENDITA
LOCAZIONE
PUBBLICITA'
OPERAZIONI IMMOBILIARI
PERIZIE
ASSISTENZA TECNICA GIURIDICA
RICERCHE E VISURE
SERVIZI FINANZIARI
ASSOCIATI FIAIP
PORTAFOGLIO ACQUIRENTI
RELAZIONI PERIODICHE
REGISTRAZIONE
ASSICURAZIONE
CERTIFICAZIONE ENERGETICA
ASSISTENZA NOTARILE
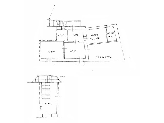
Nel pieno centro di Giarre, in Via Sartori, a pochi passi dalla Piazza Duomo, proponiamo in vendita una casa totalmente indipendente situata al primo piano, ideale per chi desidera vivere nel cuore della città con tutti i servizi a portata di mano.
La posizione è uno dei principali punti di forza dell’immobile: ci troviamo in una traversa caratteristica del centro storico, a due minuti a piedi dal Duomo, dai principali negozi, bar, supermercati e uffici. Una zona viva e servita, perfetta sia come abitazione principale sia come investimento.
L’immobile si sviluppa al piano primo per una superficie di circa 65 mq. L’ingresso è ampio e ben disimpegnato, elemento sempre più raro nelle soluzioni di questa tipologia. Gli ambienti interni comprendono due stanze luminose e una cucina che si affaccia direttamente sul terrazzo a livello, vero valore aggiunto della casa.
Il terrazzo a livello rappresenta uno spazio esterno prezioso, ideale per creare una zona relax, un’area pranzo all’aperto o un piccolo angolo verde nel cuore del centro cittadino. L’immobile necessita di interventi di ristrutturazione, ma offre ottime possibilità di personalizzazione, valorizzando al meglio la distribuzione interna e gli spazi.
Si tratta di una soluzione interessante per giovani coppie, single o per chi desidera realizzare una casa vacanza nel centro di Giarre, grazie alla posizione strategica e alla presenza dello spazio esterno.
Se cerchi una casa indipendente con terrazzo nel cuore di Giarre, questa è un’opportunità da valutare con attenzione.
Prezzo euro 42.000
READ IN ENGLISH
In the very centre of Giarre, on Via Sartori, a few steps from Piazza Duomo, we offer for sale a totally independent house located on the first floor, ideal for those who want to live in the heart of the city with all the services at their fingertips. The location is one of the main strengths of the property: we are located in a characteristic side street of the historic center, a two-minute walk from the Duomo, the main shops, bars, supermarkets and offices. A living and serviced area, perfect both as a main residence and as an investment. The property is located on the first floor and covers an area of approximately 65 m2. The entrance is wide and well-disengaged, an increasingly rare element in solutions of this type. The interior rooms include two bright rooms and a kitchen that directly overlooks the level terrace, a true added value of the house. The level terrace represents a valuable outdoor space, ideal for creating a relaxation area, an outdoor dining area, or a small green corner in the heart of the city center. The property requires renovation, but offers excellent customization options, making the most of the interior layout and spaces. This is an interesting solution for young couples, singles or those who want to create a holiday home in the centre of Giarre, thanks to its strategic location and the presence of the outdoor space. If you are looking for a detached house with terrace in the heart of Giarre, this is an opportunity to consider carefully. Price euro 42,000
I campi contrassegnati con (*) sono obbligatori.
Segnala immobile
Ricerca immobile
Servizi