Mq 1,070 - Locali: >5
Da ristrutturare - Classe:
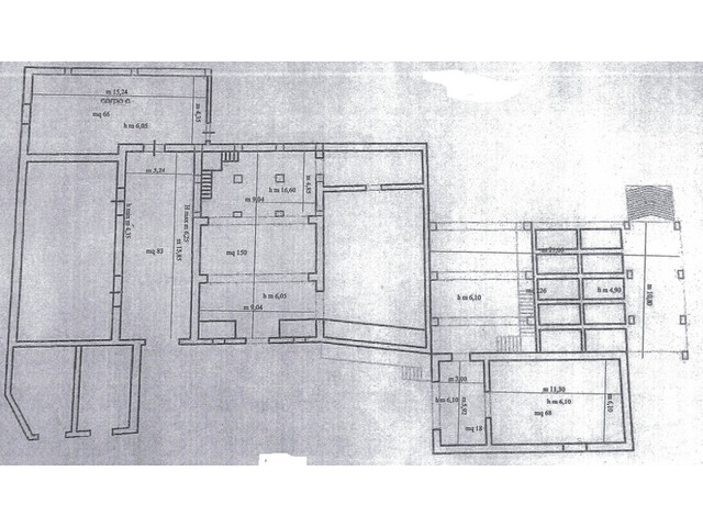
Santa Venerina - Catania
Immagina di riscoprire un pezzo di storia, un luogo che racconta il passato con il suo fascino autentico. Nel cuore di Santa Venerina (CT)  si trova questa ex distilleria storica, un vero tesoro di 1070 mq, circondata da una corte esterna di oltre 1000 mq, pronta a rinascere sotto una nuova luce. ...
€143.000,00

Immagina di riscoprire un pezzo di storia, un luogo che racconta il passato con il suo fascino autentico. Nel cuore di Santa Venerina (CT)  si trova questa ex distilleria storica, un vero tesoro di 1070 mq, circondata da una corte esterna di oltre 1000 mq, pronta a rinascere sotto una nuova luce.

Questo straordinario edificio, testimone di un’epoca passata, può essere trasformato in un’attività ricettiva o in un progetto che rispetti e valorizzi le sue caratteristiche architettoniche e gli impianti originari, secondo le norme di attuazione del piano regolatore. È un’opportunità unica per creare un luogo che unisce il fascino della storia alla modernità, mantenendo vivo il patrimonio culturale e dando nuova vita a un pezzo di storia locale.

Se sogni di realizzare qualcosa di speciale, questa distilleria può diventare il tuo progetto di cuore: un bed & breakfast, un agriturismo, o un’altra attività che rispetti e valorizzi la sua identità. Un’occasione irripetibile per vivere immersi nella storia, in un ambiente ricco di charme e di potenzialità, pronto a essere trasformato in un capolavoro di conservazione e innovazione.

Sei pronto a scrivere il prossimo capitolo di questa affascinante storia?

Richiesta euro 143.000,00

 

READ IN ENGLISH

Imagine rediscovering a piece of history, a place that tells the story of the past with its authentic charm. In the heart of Santa Venerina (CT) there is this former historic distillery, a true treasure of 1070 m2, surrounded by an external courtyard of over 1000 m2, ready to be reborn in a new light.
This extraordinary building, witness to a bygone era, can be transformed into a hospitality business or a project that respects and enhances its architectural characteristics and original systems, according to the implementing rules of the master plan. It is a unique opportunity to create a place that combines the charm of history with modernity, keeping cultural heritage alive and giving new life to a piece of local history.
If you dream of making something special, this distillery can become your heart project: a bed & breakfast, a farmhouse, or another activity that respects and enhances its identity. An unrepeatable opportunity to live immersed in history, in an environment full of charm and potential, ready to be transformed into a masterpiece of conservation and innovation.
Are you ready to write the next chapter of this fascinating story?
Claim EUR 143 000.00

 

Rif.1087Bagni1
CucinaNon presenteTotale piani2
StatoDa ristrutturareSuperficie1,070 (Mq)
BalconeNessunoBoxPosto auto
Locali>5RiscaldamentoAssente
Pianosu due livelliGiardinoDi proprietà
AscensoreNessunoPrezzo trattabile
TerrazzoNessunoClasse energetica
Consumo stimato

I campi contrassegnati con (*) sono obbligatori.