Servizio Clienti: 3454618833
Dal Lunedi al Sabato dalle 9:00 alle 13:00 - dalle 16:00 alle 20:00
Samuel immobiliare di Roberto Castorina - Agenzia Immobiliare Sicilia - Catania - Giarre - Riposto - Acireale - Taormina - Giardini Naxos
Vendita
Locazioni
Richieste
Contratto
Chi Siamo
Dove Siamo
Contattaci
Lavora con noi
COMPRAVENDITA
LOCAZIONE
PUBBLICITA'
OPERAZIONI IMMOBILIARI
PERIZIE
ASSISTENZA TECNICA GIURIDICA
RICERCHE E VISURE
SERVIZI FINANZIARI
ASSOCIATI FIAIP
PORTAFOGLIO ACQUIRENTI
RELAZIONI PERIODICHE
REGISTRAZIONE
ASSICURAZIONE
CERTIFICAZIONE ENERGETICA
ASSISTENZA NOTARILE
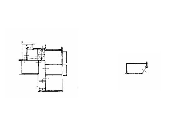
Nel cuore di Riposto, precisamente in Via Roma, in una zona centralissima e ben servita da scuole, negozi, bar e a pochi passi dal porto turistico e dalla stazione ferroviaria, proponiamo in vendita un appartamento situato all’interno di un curato contesto residenziale, pronto per essere abitato.
L’immobile si trova al quarto piano con ascensore e gode di una splendida vista panoramica sull’Etna e sul mare. Con i suoi 122 mq di ampia metratura e la doppia esposizione, offre ambienti luminosi e ben distribuiti: un soggiorno accogliente, una cucina abitabile, tre camere da letto, un bagno e una lavanderia verandata con servizi.
L’appartamento è dotato di riscaldamento autonomo e infissi in alluminio con doppi vetri, che garantiscono comfort e un ottimo isolamento termico.
A completare la proprietà vi è un comodo garage singolo.
Una soluzione ideale per chi desidera vivere in piena comodità, con panorama e centralità. Certificato di prestazione energetica in corso.
Prezzo richiesto: euro 108.000,00.
READ IN ENGLISH
In the heart of Riposto, precisely in Via Roma, in a very central area well served by schools, shops, bars and a few steps from the tourist port and the train station, we offer for sale an apartment located within a well-kept residential context, ready to be inhabited. The property is located on the fourth floor with a lift and enjoys a splendid panoramic view of Etna and the sea. With its 122 m2 of large size and double exposure, it offers bright and well-distributed environments: a welcoming living room, a kitchen, three bedrooms, a bathroom and a veranda laundry room with bathroom. The apartment is equipped with independent heating and aluminum frames with double glazing, which guarantee comfort and excellent thermal insulation. To complete the property there is a comfortable single garage. An ideal solution for those who want to live in complete comfort, with panorama and centrality. Energy performance certificate in progress. Asking price: EUR 108,000.00.
I campi contrassegnati con (*) sono obbligatori.
Segnala immobile
Ricerca immobile
Servizi